Ismertető
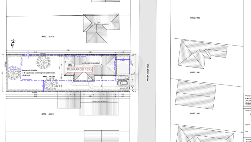
Ecséden, 750 m²-es telken, 119 m²-es új építésű családi ház eladó!
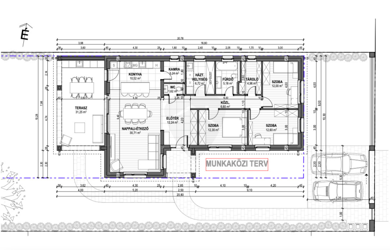
Az ingatlan modern elrendezésű:
– amerikai konyhás nappali
– 3 hálószoba
– fürdőszoba
– külön WC
– háztartási helyiség
– terasz
A ház energiatakarékos kivitelezésben épül, korszerű hőszivattyús fűtéssel, padlófűtéssel.
CSOK Plusz és Otthon Start igénybe vehető!
Főbb műszaki jellemzők
– 30-as nútféderes tégla falazat
– fa födém
– antracit betoncserép tetőhéjazat
– 15 cm EPS homlokzati szigetelés
– 10 cm Austrotherm AT-N100 padlószigetelés
– 25 cm ásványgyapot födémszigetelés
– 6 légkamrás, 3 rétegű üvegezésű nyílászárók
– 10 kW monoblockos hőszivattyú
– padlófűtés
Választható műszaki tartalom (alapárban)
– hidegburkolat: 3.000 Ft/m²-ig
– melegburkolat: 3.000 Ft/m²-ig
– csaptelepek: 15.000 Ft/db-ig
– kád vagy zuhany: 40.000 Ft-ig
– beltéri ajtók: 35.000 Ft/db-ig
Magasabb árkategóriás anyagok is választhatók a különbözet finanszírozásával.
Elektromos kiépítés
– szobák: 3 db konnektor
– nappali: 4 db konnektor + internet és kábeltévé kiállás
– konyha: 6 db konnektor
– világítás: helyiségenként 1 db
– kábeltévé előkészítés
– riasztó előkészítés
– kapumozgató elektronika előkészítés
Összegzés
– Lakótér: 119 m²
– Telek: 750 m²
– Elosztás: amerikai konyhás nappali + 3 szoba
– Terasz
– Korszerű hőszivattyús fűtés, padlófűtéssel
– CSOK Plusz és Otthon Start igénybe vehető
Kérésre teljes tervdokumentáció és részletes műszaki leírás is elérhető.
Díjmentes hiteltanácsadás és ügyintézés szintén elérhető nálunk!
Részletek
-
Építés éve:
2025 -
Szobák száma:
4 -
Állapot:
új -
Épület típusa:
családiház -
Terasz:
31 m2 -
Kilátás:
udvari -
Tájolás:
NY -
Telekméret:
750 m2 -
Övezet:
nincs adat -
Tetőtér:
nincs adat
